Trang chủ
Về chúng tôi
Dự án
Tin tức
Liên hệ
Trang chủ
Về chúng tôi
Dự án
Tin tức
Liên hệ
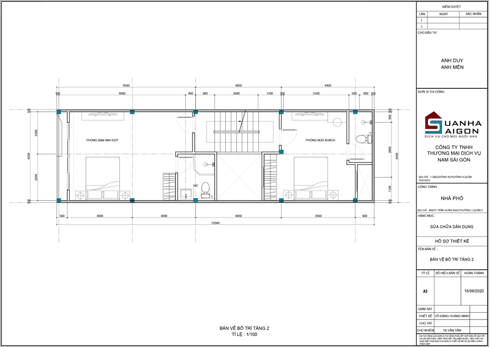
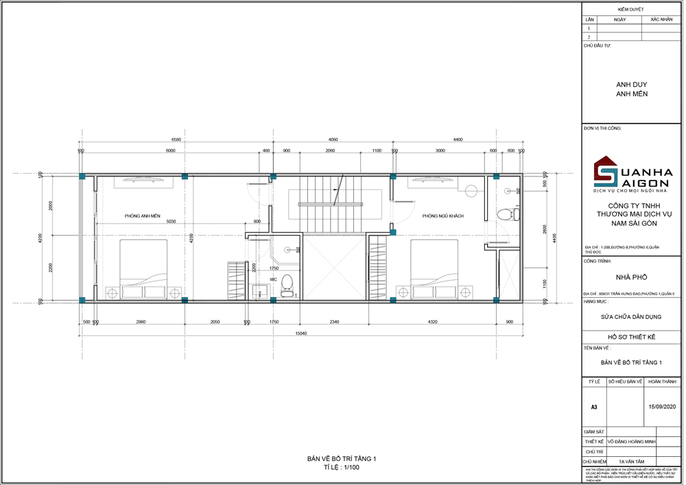
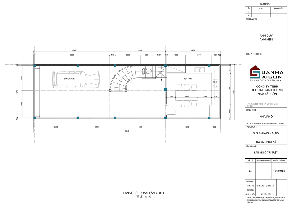
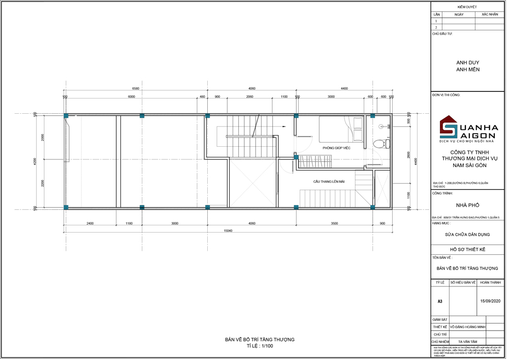
Dự án 2 Cải tạo nhà phố Anh Duy Anh Mến
-
Dự án
-
Dự án 2 Cải tạo nhà phố Anh Duy Anh Mến
Dự án 2 Cải tạo nhà phố Anh Duy Anh Mến
09/06/2022
Chuyên mục
Dự án
Bài viết liên quan
Căn A14.11 Sai Gon South Nhà Bè 2020
Dự án 13 Căn B2.06 The Sol CiTy
Dự án 12 Thi công nhà phố quận 8
Dự án 11 Căn B2.08 – Khu dân cư The Sol City
Dự án 10 Văn phòng Công ty Đại Nam